DMU-2000 Updates

Home Interests My Opinion KC8RP Family Genealogy Favorites

           

 

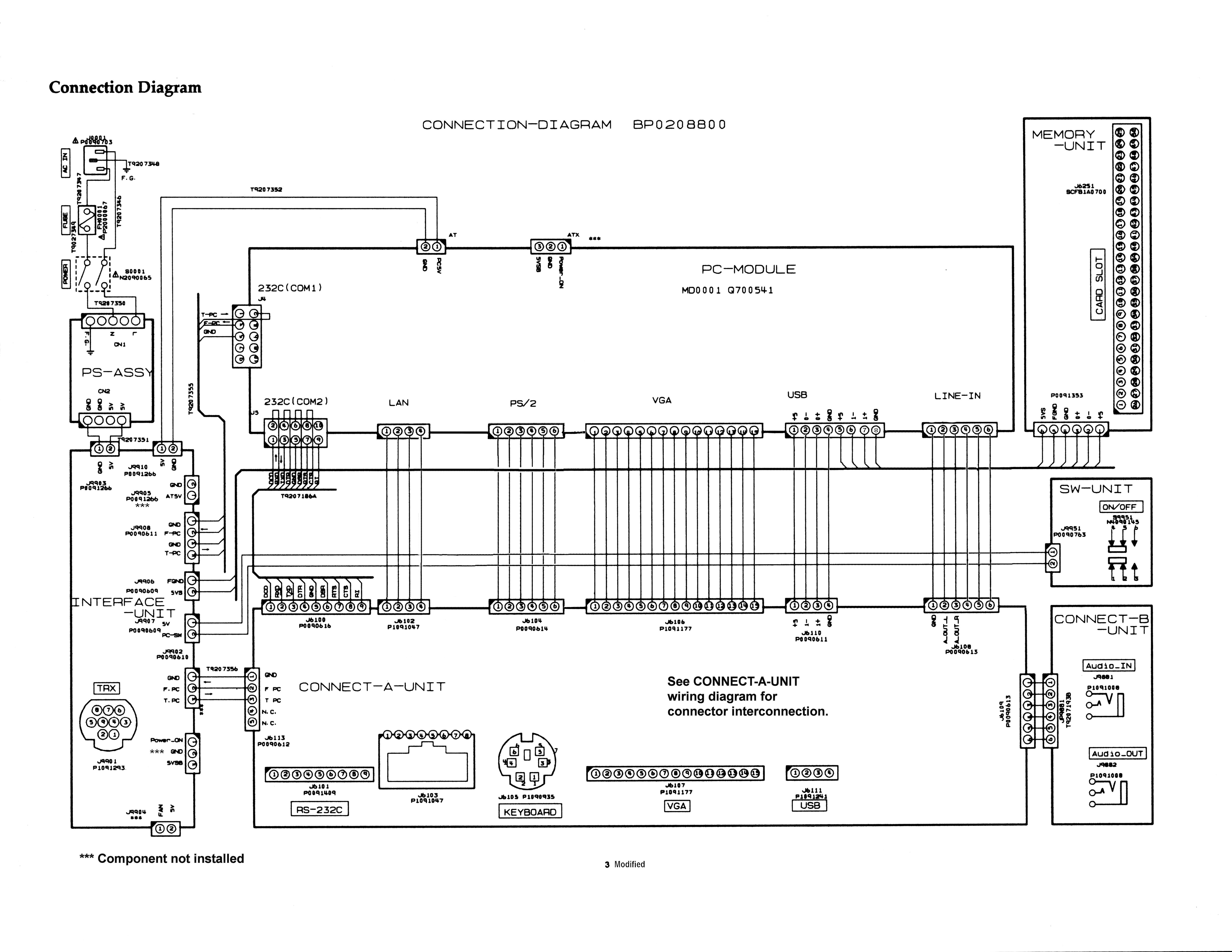
This page is descibes the differences between the DMU 2000 technical manual and the current DMU. I have incorporated the updated schematics and some FT-2000 schematics in an updated manual.

In the technical manual it shows multiple I/O connectors between the Connect A board and CPU board, J6102 & J6106 are now ribbon connectors to the PC board.

Click to enlarge image

The next set of pictures show how the current board is laid out.

The PC interface side.

The rear panel conectors

Click to enlace image.

The following is the updated schematics of the old and new. In the new circuit the radio receives data from Audio out Left on pin 2, it also shares it with audio out on back panel.

The original circuit diagram.

The new circuit diagram as it is in current DMUs

The following is the interconnection diagram for the old style and new style. J6112 is not in the new version, J6113 and J6109 are combined and go out J6108 to Line in on the PC board.

The original interconnection diagram.

The interconnection diagram in the newer units.

PC board with the interface connectors across the bottom.

 

The following is the DMU radio interface. I did not modify the schematic since there were no changes. The board does not contain all the components as can be seen.
The interface from the radio is simply an RS232 interface, J9908, which goes to the PC Com 1 and audio, J9902 goes to J6113 on the Connect a unit. The audio in on Pin 3 is fom the PCs left channel and the audio out on Pin 2 goes to the PCs Audio in left channel. The RS232 on the back of the DMU goes to Com 2.

The diagram has numerous components with 3 stars, they are not used or installed.

This is the current interface board showing the location of the missing components.

The following are the Audio in and out Jacks on the back of the DMU. The audio out is unchanged with the exception that it shares Pin 2 audio out left with the radio. Audio in has a different configuration, there is no connection to Pin 6 while Pin 5 is audio in right channel. Audio in is from the radio audio out jack and is used by the DMU for audio scope displays.

Back panel audio In and Out jacks.

One final change was on the DMU memory unit, the front CF card reader. The LED does not go to ground as shown in the original circuit but is driven by a transistor from Pin 6 of J6250, this comes from the Interface unit J9906.When the radio is on and the PC is on with the front power switch pushed in, the LED will be able to turn on. The other part of the connector goes to USB on the PC board.

The LED above the large IC does not got ground. See updated schematic.

The LED through a transistor and out Pin 6 of J6250.

The following images show some of the interconnections.

The memory unit connected to the Interface unit.

Front panel Power switch connected to the Interface unit.

Another view.

Here is a basic explanation of the DMUs operation.

The DMU boots up like any PC when the back power switch is turned on. Assuming the radio is on, when you push the front power switch it sends a signal to the radio that it is on and to send data. The radio sends commands to the DMU through the Interface unit to Com 1 on the PC board, at the same time it sends out audio data to the Left Channel In on the PC board. It also receives audio from the Left Channel Out of the PC.

The PC is a simple Micro PC with a very slow Celeron processor, a few megs of memory and a CF, compact flash, card for a disk drive. I have started to think about using the interface out of the radio but use a more powerful PC, see my Wyse RxOL page.

This is all for now, I hope it was of some help.

73
Richard, KC8RP